
🚗 NOWA INWESTYCJA – GARAŻE NA OSSOWSKIEGO 60 🚗
Famel Sp. z o.o. planuje budowę nowoczesnych garaży na placu przy ul. Ossowskiego 60
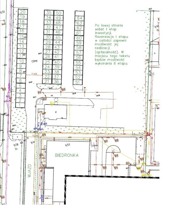
(za Biedronką)
📍 Wjazd na teren znajduje się pomiędzy SPTB a Biedronką


🔹 ZAKRES I ETAPU INWESTYCJI OBEJMUJE:
✔️ Budowę 65 garaży z bramą na pilota
✔️ Wykonanie nowego wjazdu i dojazdów z kostki betonowej
✔️ Wjazd na teren zamykany bramą na pilota
✔️ Plac oświetlony, monitorowany, utrzymanie czystości (opłata eksploatacyjna)
🏗 SPECYFIKACJA GARAŻY:
🔸 Ławy fundamentowe
🔸 Ściany z bloczka Silka (nie tynkowane)
🔸 Dach z płyty warstwowej
🔸 Wymiar wewnętrzny ok. 3,3 m x 6,3 m
🔸 Solidna konstrukcja, trwałe materiały
🔸 Brama wjazdowa sterowana pilotem
⚠️ WAŻNA INFORMACJA
✔️ Warunkiem rozpoczęcia budowy jest zebranie minimum 50 osób chętnych na zakup (+ późniejsza wpłata zaliczki).
📖 Rodzaj własności: księga wieczysta na garaż i udział w gruncie – użytkowanie wieczyste. Max 100zł/rok


📞 Zainteresowanych prosimy o kontakt i zgłoszenie chęci zakupu.
tel: 668 422 500 (pon-pt w godzinach 8:00:16:00)
mail: nieruchomosci@famel.com.pl
SPRAWDŹ DOSTĘPNOŚĆ I CENĘ poniżej (po najechaniu/kliknięciu na dany numer garażu)
Udało się spłaszczyć wahania ceny, idea pozostaje bez zmian – im dalej tym taniej.
- Przy płatności z góry całości kwoty – RABAT 2 000 zł od ceny stanowiska
- Możliwość płatności rozbitej na raty.
- Rezerwację można dokokonać wysyłając SMS z imieniem, nazwiskiem i numerem garażu
